> Art + Design Department > Graphic Design
Alumni 2020
> Art + Design Department > Game Design
Alumni 2020
> Art + Design Department > Game Design
Alumni 2020
> Art + Design Department > Game Design
Alumni 2020
> Architecture Department > Architecture [BS | M.Arch]
Alumni 2020
> Art + Design Department > Game Design
Alumni 2020
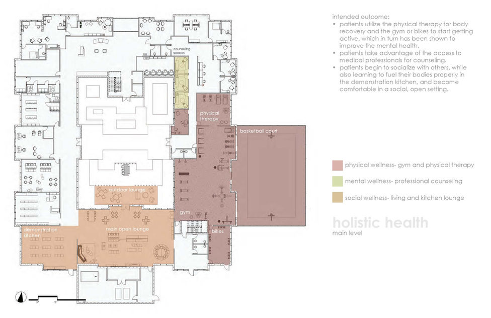
Motion on Mack
Motion on Mack
Motion on Mack creates a space for homeless veterans in need, providing them shelter and basic needs to get them back on their feet. The design creates an empathetic space that appeases both their senses and physical needs with a focus on physical activity as a means to improve mental health. The aim was to provide a space that encourages them to grow socially within a comfortable environment.
Department>
Architecture
Program>
Interior Architecture
Course>
Interiors Studio 04

Contact
kwalker@ltu.edu
instagram: kayleighwalker
linkedIn: https://www.linkedin.com/in/kayleigh-walker-a30600133/
Kayleigh Walker
I am a dual-degree student in Architecture + Interior Architecture, graduating this semester. In my limited free time, I study fitness nutrition and love to travel. I am continuing my education with the LTU Masters of Architecture program this summer while moving to Colorado for work and pursue my dream of building homes in the mountains.









